18 January 2016
Cummins India
The InSites
Phaltan Mega Site Visit update
We recently visited Cummins Phaltan mega site. Our key takeaways:
Power Generation exports slow down:
KKC’s Power Generation Business Unit
(PGBU) at Phaltan manufactures the X, S, B and L series (8-330kva) diesel
gensets (DGs). It has an installed capacity of 24,000 engines. Cummins The
Cummins Phaltan mega
India(KKC) exports to over 100 countries from this SEZ and this facility is
site in Maharashtra is spread
designated as the parent’s sole sourcing hub. Monthly production has declined
over a 225 acre campus and was
from a peak of 2,040 DGs in April, 2015 to 1,300-1,400 units primarily on weak
conceived to consolidate and
demand in key end markets. The company expects monthly production to
house all ongoing and future
increase to 1,500 units from March 2016, but there is unlikely to be a need to
expansion plans of Cummins
increase capacity in the near term. Sales from this facility were at INR10b in
group in India. Eight plants have
CY15, up from INR7b in CY14. The management expects 10-15% growth in CY16
become operational at the
Megasite since 2011 - the
while we build in 20% growth in KKC’s exports in FY17e, which could be at risk
second and third manufacturing
given the said guidance (~50% of overall exports from this facility).
facility of Tata Cummins Limited,
Tata Cummins Unit (TCL) geared to support KKC’s Power Generation,
an Engine rebuild center, a
Automotive and Industrial segments:
TCL, a 50:50 JV of Tata Motors and
Reconditioning facility for
Cummins Inc, has two facilities at Phaltan. These manufacture the B and L series
remanufacturing engines and
of engines (80-330kva). TCL has worked closely with KKC and played a key role
components, a Parts
introducing CPCB 2 compliant engines in India. Engines from these facilities are
Distribution Center , Mid-Range
used in both the export markets (Power Generation) and domestic
Engine Upfit Center, Low HP DG
(Automotive, Power Generation and Industrial) segments. We understand that
exports and HHP engines.
given the large capacity (0.12m for the B series in Phase I and 45,000 for L series
/ 60,000 units for B Series in Phase II), TCL is among the lowest cost
In addition to the eight plants,
manufacturers of these engines in India. As per our interactions, we are given to
the Megasite has a common
understand that while there has been a pickup in the domestic automotive and
facility building which houses
the Health Center, gymnasium
industrial segments, the Power generation segment remains subdued.
and crèche. A recent addition
India Parts Distribution Center (PDC) to increase efficiencies in sourcing:
This is
has been a world-class training
a warehousing and logistics facility for spare parts of Cummins products. It is
and development Center to
spread over 100,000sf and distributes genuine spare parts across the country
cater to the training and
via KKC dealers (70% of sales), direct sales (15%) and Genset OEM’s (5%). There
development needs of the
are eight PDCs globally, including the one in Phaltan. The facility works as a cost
employees across the
center for the Distribution Business Unit and serves to reduce the cost of
organization and a residential
sourcing parts from vendors, improving the delivery time to customers and
campus for employees working
ensuring quality of the spare parts. We note that the services/AMC business is
at the Megasite.
retained with the Distribution BU.
Valuation and view:
We expect KKC to report revenue growth of 19% in FY17
and 17% in FY18 largely supported by 20% CAGR in export revenues in FY17/18.
Margins are seen improving to 18.2% in FY17 / 19.3% in FY18, versus the
current 16.5% in FY16 (1HFY16 at 16.7%) led by benefits of RM price decline and increased localization
initiatives. We have a
Neutral
rating with a target price of INR1, 052.
Ankur Sharma
(Ankur.vsharma@MotilalOswal.com); +91 22 3982 5449
Amit Shah
(Amit.Shah@MotilalOswal.com) +91 22 3029 5126
Investors are advised to refer through important disclosures made at the last page of the Research Report.
Motilal Oswal research is available on
www.motilaloswal.com/Institutional-Equities,
Bloomberg, Thomson Reuters, Factset and S&P Capital.

The InSites
Takeaways from Phaltan plant visit
Power Generation Business Unit SEZ (Diesel Genset, 8-330kva)
KKC has invested ~INR0.9b in setting up the PGBU SEZ genset factory, which is
spread over 36 acres. It serves as a DG set assembly unit, where the engines,
alternators, canopies and electricals are put together and shipped to customers.
The unit started operations in May 2013, with a focus on <200kva DG sets (X, S
and B series). The engines are sourced from Simson (X series), Tata Cummins (B
series) and Tata Motors (S series). From July 2014, this facility also stated
assembling mid-range (275-330kva) products; this activity has been transferred
from Kent, UK. The electronic engines are now being sourced from the Tata
Cummins factory in Phaltan.
The facility has a capacity of 24,000units/annum while the current monthly
production is 1,300-1,400 units, implying a utilization of 72%. In January 2014,
production was 500 units. All of KKC’s low/mid-HP exports (8-330kva) have been
moved to this facility. Earlier, the Pirangut facility catered to low HP exports.
The facility saw peak production of 2,040 units in April 2015. Since then, given
the weakness in global markets, production has reduced. The management has
guided that monthly production would increase to 1,500 units by March 2016.
Sales in CY15 were INR10b; a 10-15% increase is likely in CY16.
The target over the medium term is to raise capacity to ~45,000 units and there
is sufficient land available to expand capacity and set up another unit if needed.
Key export markets include Africa, LatAm, Middle East and Europe. In the
2QFY16 concall, the management had guided to reaching full capacity (24,000
units) over the next few years.
Tata Cummins Limited (TCL): Tata Motors and Cummins Inc’s 50:50 JV
The Tata Motors-Cummins Inc JV for manufacturing engines began production in
January 2011. It has a capacity of 0.12m units per annum and is currently
producing 8,000 units/month (80% utilization). It makes the B series engines (3.9
litres and 6.9 litres; 80-225kva). It supplies 70% of its production to Tata Motors
and the balance is equally split between Power Generation(PGBU) and Industrial
usage. Industrial engines are supplied to customers such as JCB, Hyundai and
Tata Hitach. It also supplies to the PGBU SEZ facility and PMUC at Phaltan for the
B series engines sold in the domestic market.
The second plant at Phaltan (ISL) under the JV makes the L series (275-330kva),
also caters to the Power Generation, Automotive and Industrial markets. This
facility currently produces 250 units/month, with ~70% of production being
used for the Power Generation market and the balance for the Automotive
market. We note that this engine range was earlier being manufactured out of
Kent, England and was been transferred to India in CY14.
TCL has closely worked with KKC to manufacture the CPCB2 engines – while the
80-125kva engines have been retained as mechanical, the 140-225kva range has
been converted to electronic engines. KKC is likely to use Selective Catalytic
Reduction (SCR) to meet the emission norms during CPCB III standards.
18 January 2016
2

The InSites
Exhibit 1:
Tata Cummins plants across India
Description
Product
Capacity
Land area
Jamshedpur
B Series
120,000
42 acres
Phaltan Phase 1
B Series
120,000
25 acres
Phaltan Ph II
B & L series
L series - 15,000 units
B series - 60,000 but on hold
28 acres
Source: Company, MOSL
India Parts Distribution Center (PDC)
This is a warehousing and logistics facility for spare parts of Cummins products.
The facility is spread over 100,000sf and serves to distribute genuine spare parts
across the country via Cummins dealers (70% of sales), direct sales (15%) and
Genset OEM’s (5%). There are eight PDCs globally including the one in Phaltan.
This facility has annual revenue of ~INR6b and stocks more than 50,000 parts. It
supplies spare parts across Power Generation, Automotive and Industrial
Business Units. The services/annual maintainence contracts remain with the
Distribution Business Unit.
The India PDC is a cost center and sales to external customers are booked as
sales by the Distribution Business Unit. The PDC charges the DBU for the costs
incurred by it in terms of manpower, logistics, etc.
Distribution Business Unit Training Center
The DBU Training Center is used for training service personnel to attend to the
after sales needs of Cummins engines across Power Generation, Industrial and
Automotive engines.
1,500 serrvice personnel are trained annually, and post training, a unique ID is
issued. Only then are these personnel authorized to open and service Cummins
engines.
18 January 2016
3

The InSites
Other facilities at the Phaltan mega site
Cummins Technology India Limited: High Horse Power (HHP) Rebuild Center
The HHP Rebuild Center is used for engines >300kva-1,800kva; these are
completely dismantled, parts replaced and painted to extend the engine life by
8,000-10,000 hours and at 65-70% of a new engine cost. This is part of the
Distribution BU.
With the introduction of new CPCB 2 norms, new engines can be rebuilt only by
CTIL and not by unauthorized local centers. Note that <300kva engines are only
sent to the Recon Center, which is housed under Cummins Research and
Technology India (CRTI). The Recon Center also supplies used engines to the
HHP Rebuild Center. Warranty by Cummins is 1,800 hours or 6 months;
Cummins India: Phaltan Mid-range Upfit Center (PMUC)
The Upfit Center has been established to assemble, upfit (add motors, starters,
turbo chargers to engines), test and paint diesel and gas engines – both
mechanical and electronic (B, L series) – for the domestic market. It also
manufactures C/L series engines, which have Power Generation, Industrial and
Automotive applications.
Exhibit 2:
Cummins facilities at Phaltan
Investment
Plant Name
(INR m)
Power Generation Business
910
Unit (PGBU)
High HP Rebuild (HHP
360
Rebuild)
India Parts Distribution
500
Centre (IPDC)
Mid-Range Upfit Centre
260
(PMUC)
Common Facilities
Total CIL Capex
High Horse Power
Recon
Tata Cummins 2
660
2,690
na
na
na
Controlling
entity
Comment
CIL
Assembly of low and mid-range gensets up to 320kVA
CIL
CIL
CIL
CIL
This center will rebuild high horsepower engines from 19 liters (K19) up to 60 liters
(QSK60 series) and also repair all other Cummins manufactured engine models
To enhance supply chain efficiency in aftermarket parts distribution as well as act as
a logistics hub
Up-fit of diesel and natural gas mechanical and electronic B and L series engines and
manufacture of C/L series engines which have power generation, industrial and
automotive applications
Tata Cummins 3
Phaltan Engine Plant for manufacture of High Horse Power Engines - QSK 23 and QSK
60
CTIL
The Recon facility will offer professionally remanufactured, high quality engines and
components built in accordance to specifications of the original product
JV between Manufacture of the B series engines with a capacity of 120,000 engines with
Cummins Inc. supplies to PGBU(domestic and exports), Industrial and automotive segments
and Tata
Motors
JV between Manufacture Mid-Range Engine L series 6.9 lit and ISLe 8.9 lit engines. TCL 3 will
Cummins Inc. supply engines for Mid HP exports by Cummins India
and Tata
Motors
Source: MOSL, Company
CTIL
18 January 2016
4

The InSites
Phaltan plant history
January 2011:
Phaltan mega site inaugurated, with the launch of three
manufacturing units (1) High HP Rebuild Center, (b) Tata Cummins’ manufacturing
unit for B series and ISB electronic engines, and recon (manufacturing facility for
parts and engines up to 19 liters).
August 2011:
India Parts Distribution Center becomes operational for enhancing
supply chain efficiency and aftermarket parts distribution business.
March 2013:
Phaltan Mid-range Upfit Center (PMUC) becomes operational with an
installed capacity of 80 engines per day. New facility would be utilized to assemble,
upfit, test and paint mechanical and electrical engines of B and L series.
May 2013:
LHP generator plant inaugurated in SEZ with an installed capacity of
23,460 units per year. New unit to support exports to Asia, China, Latin America,
Africa and Europe.
September 2013:
Opens High Horse Power plant dedicated for building QSK 23
series engines, with an installed capacity of 3,000 units per annum.
February 2014:
Tata Cummins’ (TCL) India Midrange Engines plant dedicated for
manufacturing diesel engines becomes operational. The plant is designed to
produce 45,000 units of the L series and 120,000 units of the B series engines.
18 January 2016
5

The InSites
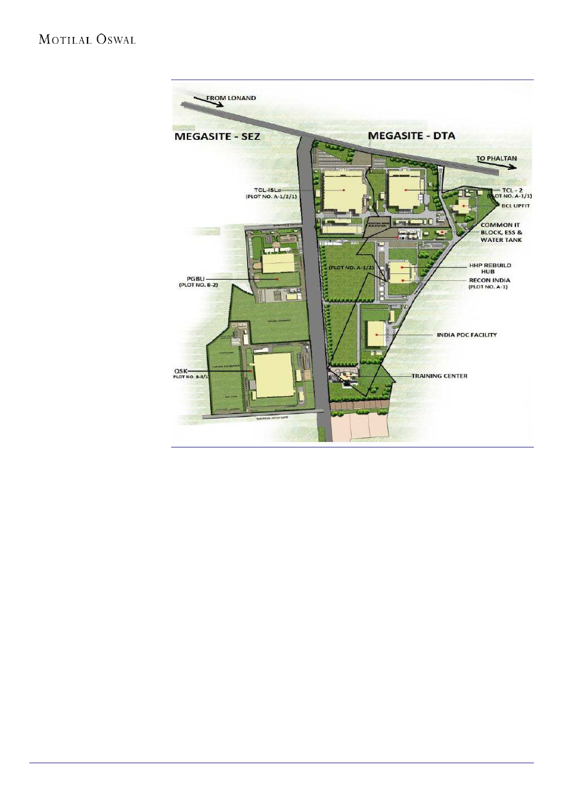
Phaltan plant layout
Source: Company, MOSL
18 January 2016
6

The InSites
Operating metrics
FY11
Segmental Revenue (INR m)
Power
- MHP / HHP
- LHP
Industrial
Auto
Distribution
- Spare Parts
- Recon
Domestic
Exports
- HH / HHP
- MHP / LHP
Net Sales
Growth (%)
Existing Business
% YoY
New Businesses (LHP, Recon)
% YoY
RM Costs (%)
Contribution Margins (%)
EBITDA margin (%)
Net Working Capital (Days)
Net Cash / (Debt), INR M
13,650
13,650
5,500
2,330
7,500
7,500
31,799
10,604
10,604
nm
39,512
38.7
39,512
38.9%
-
FY12
12,562
12,562
5,673
2,837
7,699
7,699
28,800
11,720
9,520
2,200
40,522
2.7
38,322
-3.0%
2,200
FY13
16,065
16,065
nm
5,060
1,659
9,080
9,080
nm
32,400
12,690
8,810
3,880
45,090
11.3
41,210
7.5%
3,880
FY14
11,150
10,550
600
5,248
1,162
9,090
9,090
nm
27,001
11,990
8,190
3,800
38,991
-13.5
34,591
-16.1%
4,400
13.4%
61.0%
39.0%
17.5%
81.0
865
FY15
10,550
9,800
750
5,070
1,100
9,050
8,800
250
25,990
17,253
9,253
8,000
43,211
10.9
34,211
-1.1%
9,000
104.5%
61.8%
38.2%
16.7%
82.9
799
FY16E
12,977
11,727
1,250
6,084
1,210
9,955
9,555
400
30,226
18,960
10,000
8,960
49,186
19.2
38,036
11.2%
11,150
23.9%
62.8%
37.2%
16.5%
FY17E
15,572
13,072
2,500
7,301
1,331
11,448
10,648
800
35,652
22,820
10,500
12,320
58,472
12.1
43,672
14.8%
14,800
32.7%
62.3%
37.7%
18.2%
63.8%
36.2%
18.9%
48.4
855
64.3%
35.7%
16.9%
63.4
2,088
62.9%
37.1%
18.2%
65.5
3,547
82.9
82.9
1,874
3,401
Source: Company, MOSL
18 January 2016
7

The InSites
Financials and valuations
Income Statement
Y/E March
Total Revenues
Change (%)
Raw Materials
Staff Cost
Other Expenses
EBITDA
% of Total Revenues
Depreciation
Other Income
Interest
PBT
Tax
Rate (%)
Adjusted PAT
Extra-ordinary Income (net)
Reported PAT
Change (%)
2012
41,172
1.8
26,454
3,039
4,706
6,972
16.9
420
1,234
54
7,732
2,334
30.2
5,398
514
5,913
0.0
2013
45,894
11.5
28,874
3,386
5,285
8,349
18.2
473
1,577
46
9,407
2,774
29.5
6,633
1,008
7,641
29.2
2014
39,767
-13.4
24,241
3,396
5,162
6,968
17.5
528
1,777
42
8,175
2,175
26.6
6,000
0
6,000
-21.5
2015
44,058
10.8
27,225
3,936
5,547
7,351
16.7
797
2,866
45
9,374
1,515
16.2
7,859
0
7,859
31.0
2016E
50,214
14.0
31,531
4,428
5,965
8,291
16.5
1,013
2,300
45
9,532
1,716
18.0
7,816
0
7,816
-0.5
2017E
59,504
18.5
37,067
5,042
6,558
10,837
18.2
1,213
2,379
45
11,957
2,152
18.0
9,805
0
9,805
25.4
(INR Million)
2018E
69,782
17.3
43,469
5,657
7,212
13,445
19.3
1,330
2,462
45
14,530
3,633
25.0
10,898
0
10,898
11.1
Balance Sheet
Y/E March
Share Capital
Reserves
Net Worth
Loans
Deferred Tax Liability
Capital Employed
Gross Fixed Assets
Less: Depreciation
Net Fixed Assets
Capital WIP
Investments
Curr. Assets
Inventory
Debtors
Cash & Bank Balance
Loans & Advances
Other Assets
Current Liab. & Prov.
Current Liabilities
Provisions
Net Current Assets
Application of Funds
E: MOSL Estimates
2012
554
19,877
20,432
147
-70
20,509
9,703
5,054
4,649
497
5,976
19,826
5,676
6,783
2,235
5,082
50
10,438
6,702
3,736
9,388
20,509
2013
554
23,313
23,867
0
328
24,195
10,415
5,480
4,934
1,208
6,276
24,278
5,304
8,550
3,547
6,788
90
12,501
7,719
4,782
11,777
24,195
2014
554
25,097
25,652
0
465
26,117
15,120
5,928
9,192
958
4,954
22,625
5,513
7,820
865
8,405
22
11,611
6,910
4,701
11,014
26,117
2015
554
28,311
28,865
0
631
29,496
18,830
6,491
12,340
1,706
4,650
24,521
6,823
9,355
799
7,472
73
13,721
8,520
5,202
10,800
29,496
2016E
554
31,836
32,391
0
631
33,021
24,330
7,504
16,826
1,706
1,450
28,357
7,617
10,444
1,874
8,341
81
15,318
9,511
5,807
13,039
33,021
2017E
554
36,259
36,813
0
631
37,444
27,330
8,717
18,613
1,706
450
34,885
9,055
12,416
3,401
9,916
97
18,210
11,307
6,904
16,674
37,444
(INR Million)
2018E
554
41,174
41,728
0
631
42,359
29,330
10,048
19,283
1,706
450
42,315
10,638
14,588
5,325
11,650
114
21,395
13,284
8,111
20,920
42,359
18 January 2016
8

The InSites
Financials and valuations
Ratios
Y/E March
Basic (INR)
Adj EPS
Cash EPS
Book Value
DPS
Payout (incl. Div. Tax.)
Valuation (x)
P/E
Cash P/E
EV/EBITDA
EV/Sales
Price/Book Value
Dividend Yield (%)
Profitability Ratios (%)
RoE
RoCE
Turnover Ratios
Debtors (Days)
Inventory (Days)
Creditors. (Days)
Asset Turnover (x)
Leverage Ratio
Debt/Equity (x)
2012
19.5
21.0
73.7
10.7
50.0
2013
23.9
25.6
86.1
13.0
47.2
2014
21.6
23.5
92.5
13.0
60.1
44.7
41.1
38.3
6.9
10.4
1.3
30.7
30.7
60
50
46
2.0
0.0
34.7
36.4
68
42
46
1.9
0.0
24.2
24.4
72
51
45
1.5
0.0
2015
28.3
31.2
104.1
14.0
49.4
34.1
31.0
36.4
6.2
9.3
1.4
28.8
29.0
78
57
51
1.5
0.0
2016E
28.2
31.9
116.8
13.3
47.2
34.3
30.4
32.1
5.4
8.3
1.4
25.5
25.6
78
57
51
1.5
0.0
2017E
35.4
39.7
132.8
16.7
47.2
27.3
24.3
24.4
4.5
7.3
1.7
28.3
28.4
78
57
51
1.6
0.0
2018E
39.3
44.1
150.5
18.5
47.2
24.6
21.9
19.5
3.8
6.4
1.9
27.8
27.8
78
57
51
1.6
0.0
Cash Flow Statement
Y/E March
PBT before EO Items
Depreciation
Interest
Direct Taxes Paid
(Inc)/Dec in WC
CF from Operations
EO Income
CF from Oper. Incl. EO Items
(Inc)/Dec in FA
Free Cash Flow
Investment & Others
CF from Investments
(Inc)/Dec in Networth
(Inc)/Dec in Debt
Interest Paid
Dividend Paid
Others
CF from Fin. Activity
Inc/Dec of Cash
Add: Beginning Balance
Closing Balance
2012
7,732
420
-126
-2,155
(825)
5,046
-621
4,425
(2,288)
2,137
3,448
1,160
0
0
-54
-3,452
0
(3,506)
2,079
156
2,235
2013
9,407
473
46
-2,377
(1,562)
5,987
0
5,987
(1,469)
4,518
(300)
-1,769
998
0
0
-4,195
291
(2,906)
1,312
2,235
3,547
2014
8,175
528
-432
-2,308
(1,607)
4,356
-746
3,611
(4,678)
-1,068
5,528
850
0
0
-42
-4,216
0
(4,258)
203
662
865
2015
9,374
797
-172
-1,853
(815)
7,331
-1,993
5,338
(3,304)
2,035
2,785
-519
0
0
-45
-4,216
-327
(4,588)
231
568
799
2016E
9,532
1,013
45
-1,716
(1,209)
7,666
0
7,666
(5,500)
2,166
3,200
-2,300
0
0
0
-4,291
0
(4,291)
1,075
799
1,874
2017E
11,957
1,213
45
-2,152
(2,153)
8,910
0
8,910
(3,000)
5,910
1,000
-2,000
0
0
0
-5,383
0
(5,383)
1,527
1,874
3,401
(INR Million)
2018E
14,530
1,330
45
-3,633
(2,367)
9,907
0
9,907
(2,000)
7,907
0
-2,000
0
0
0
-5,983
0
(5,983)
1,924
3,401
5,325
18 January 2016
9

The InSites
NOTES
18 January 2016
10

BHEL
CAPITAL GOODS GALLERY
Detailed Sector Updates
Detailed Company Update
Special Reports
Initiating Coverage
Spotlights
Fulcrum (Capital Goods Insights)
12 January 2015
32

Disclosures
This document has been prepared by Motilal Oswal Securities Limited (hereinafter referred to as Most) to provide information about the company(ies) and/sector(s), if any, covered in the report and may be
The InSites
distributed by it and/or its
affiliated company(ies). This report is for personal information of the selected recipient/s and does not construe to be any investment, legal or taxation advice to you. This research report does not constitute an offer, invitation or
inducement to invest in securities or other investments and Motilal Oswal Securities Limited (hereinafter referred as MOSt) is not soliciting any action based upon it. This report is not for public distribution and has been furnished to
you solely for your general information and should not be reproduced or redistributed to any other person in any form. This report does not constitute a personal recommendation or take into account the particular investment
objectives, financial situations, or needs of individual clients. Before acting on any advice or recommendation in this material, investors should consider whether it is suitable for their particular circumstances and, if necessary, seek
professional advice. The price and value of the investments referred to in this material and the income from them may go down as well as up, and investors may realize losses on any investments. Past performance is not a guide for
future performance, future returns are not guaranteed and a loss of original capital may occur.
MOSt and its affiliates are a full-service, integrated investment banking, investment management, brokerage and financing group. We and our affiliates have investment banking and other business relationships with a some
companies covered by our Research Department. Our research professionals may provide input into our investment banking and other business selection processes. Investors should assume that MOSt and/or its affiliates are
seeking or will seek investment banking or other business from the company or companies that are the subject of this material and that the research professionals who were involved in preparing this material may educate investors
on investments in such business. The research professionals responsible for the preparation of this document may interact with trading desk personnel, sales personnel and other parties for the purpose of gathering, applying and
interpreting information. Our research professionals are paid on the profitability of MOSt which may include earnings from investment banking and other business.
MOSt generally prohibits its analysts, persons reporting to analysts, and members of their households from maintaining a financial interest in the securities or derivatives of any companies that the analysts cover. Additionally, MOSt
generally prohibits its analysts and persons reporting to analysts from serving as an officer, director, or advisory board member of any companies that the analysts cover. Our salespeople, traders, and other professionals or affiliates
may provide oral or written market commentary or trading strategies to our clients that reflect opinions that are contrary to the opinions expressed herein, and our proprietary trading and investing businesses may make investment
decisions that are inconsistent with the recommendations expressed herein. In reviewing these materials, you should be aware that any or all of the foregoing among other things, may give rise to real or potential conflicts of interest.
MOSt and its affiliated company(ies), their directors and employees and their relatives may; (a) from time to time, have a long or short position in, act as principal in, and buy or sell the securities or derivatives thereof of companies
mentioned herein. (b) be engaged in any other transaction involving such securities and earn brokerage or other compensation or act as a market maker in the financial instruments of the company(ies) discussed herein or act as an
advisor or lender/borrower to such company(ies) or may have any other potential conflict of interests with respect to any recommendation and other related information and opinions.; however the same shall have no bearing
whatsoever on the specific recommendations made by the analyst(s), as the recommendations made by the analyst(s) are completely independent of the views of the affiliates of MOSt even though there might exist an inherent
conflict of interest in some of the stocks mentioned in the research report
Reports based on technical and derivative analysis center on studying charts company's price movement, outstanding positions and trading volume, as opposed to focusing on a company's fundamentals and, as such, may not match
with a report on a company's fundamental analysis. In addition MOST has different business segments / Divisions with independent research separated by Chinese walls catering to different set of customers having various
objectives, risk profiles, investment horizon, etc, and therefore may at times have different contrary views on stocks sectors and markets.
Unauthorized disclosure, use, dissemination or copying (either whole or partial) of this information, is prohibited. The person accessing this information specifically agrees to exempt MOSt or any of its affiliates or employees from, any
and all responsibility/liability arising from such misuse and agrees not to hold MOSt or any of its affiliates or employees responsible for any such misuse and further agrees to hold MOSt or any of its affiliates or employees free and
harmless from all losses, costs, damages, expenses that may be suffered by the person accessing this information due to any errors and delays. The information contained herein is based on publicly available data or other sources
believed to be reliable. Any statements contained in this report attributed to a third party represent MOSt’s interpretation of the data, information and/or opinions provided by that third party either publicly or through a subscription
service, and such use and interpretation have not been reviewed by the third party. This Report is not intended to be a complete statement or summary of the securities, markets or developments referred to in the document. While we
would endeavor to update the information herein on reasonable basis, MOSt and/or its affiliates are under no obligation to update the information. Also there may be regulatory, compliance, or other reasons that may prevent MOSt
and/or its affiliates from doing so. MOSt or any of its affiliates or employees shall not be in any way responsible and liable for any loss or damage that may arise to any person from any inadvertent error in the information contained in
this report. MOSt or any of its affiliates or employees do not provide, at any time, any express or implied warranty of any kind, regarding any matter pertaining to this report, including without limitation the implied warranties of
merchantability, fitness for a particular purpose, and non-infringement. The recipients of this report should rely on their own investigations.
This report is intended for distribution to institutional investors. Recipients who are not institutional investors should seek advice of their independent financial advisor prior to taking any investment decision based on this report or for
any necessary explanation of its contents.
Most and it’s associates may have managed or co-managed public offering of securities, may have received compensation for investment banking or merchant banking or brokerage services, may have received any compensation for
products or services other than investment banking or merchant banking or brokerage services from the subject company in the past 12 months.
Most and it’s associates have not received any compensation or other benefits from the subject company or third party in connection with the research report.
Subject Company may have been a client of Most or its associates during twelve months preceding the date of distribution of the research report
MOSt and/or its affiliates and/or employees may have interests/positions, financial or otherwise of over 1 % at the end of the month immediately preceding the date of publication of the research in the securities mentioned in this
report. To enhance transparency, MOSt has incorporated a Disclosure of Interest Statement in this document. This should, however, not be treated as endorsement of the views expressed in the report.
Motilal Oswal Securities Limited is registered as a Research Analyst under SEBI (Research Analyst) Regulations, 2014. SEBI Reg. No. INH000000412
There are no material disciplinary action that been taken by any regulatory authority impacting equity research analysis activities
Analyst Certification
The views expressed in this research report accurately reflect the personal views of the analyst(s) about the subject securities or issues, and no part of the compensation of the research analyst(s) was, is, or will be directly or
indirectly related to the specific recommendations and views expressed by research analyst(s) in this report. The research analysts, strategists, or research associates principally responsible for preparation of MOSt research receive
compensation based upon various factors, including quality of research, investor client feedback, stock picking, competitive factors and firm revenues
Disclosure of Interest Statement
Analyst ownership of the stock
Served as an officer, director or employee
CUMMINS INDIA
No
No
A graph of daily closing prices of securities is available at www.nseindia.com and http://economictimes.indiatimes.com/markets/stocks/stock-quotes
Regional Disclosures (outside India)
For U.S.
This report is not directed or intended for distribution to or use by any person or entity resident in a state, country or any jurisdiction, where such distribution, publication, availability or use would be contrary to law, regulation or which
would subject MOSt & its group companies to registration or licensing requirements within such jurisdictions.
Motilal Oswal Securities Limited (MOSL) is not a registered broker - dealer under the U.S. Securities Exchange Act of 1934, as amended (the"1934 act") and under applicable state laws in the United States. In addition MOSL is not a
registered investment adviser under the U.S. Investment Advisers Act of 1940, as amended (the "Advisers Act" and together with the 1934 Act, the "Acts), and under applicable state laws in the United States. Accordingly, in the
absence of specific exemption under the Acts, any brokerage and investment services provided by MOSL, including the products and services described herein are not available to or intended for U.S. persons.
This report is intended for distribution only to "Major Institutional Investors" as defined by Rule 15a-6(b)(4) of the Exchange Act and interpretations thereof by SEC (henceforth referred to as "major institutional investors"). This
document must not be acted on or relied on by persons who are not major institutional investors. Any investment or investment activity to which this document relates is only available to major institutional investors and will be
engaged in only with major institutional investors. In reliance on the exemption from registration provided by Rule 15a-6 of the U.S. Securities Exchange Act of 1934, as amended (the "Exchange Act") and interpretations thereof by
the U.S. Securities and Exchange Commission ("SEC") in order to conduct business with Institutional Investors based in the U.S., MOSL has entered into a chaperoning agreement with a U.S. registered broker-dealer, Motilal Oswal
Securities International Private Limited. ("MOSIPL"). Any business interaction pursuant to this report will have to be executed within the provisions of this chaperoning agreement.
The Research Analysts contributing to the report may not be registered /qualified as research analyst with FINRA. Such research analyst may not be associated persons of the U.S. registered broker-dealer, MOSIPL, and therefore,
may not be subject to NASD rule 2711 and NYSE Rule 472 restrictions on communication with a subject company, public appearances and trading securities held by a research analyst account.
This report is distributed in Hong Kong by Motilal Oswal capital Markets (Hong Kong) Private Limited, a licensed corporation (CE AYY-301) licensed and regulated by the Hong Kong Securities and Futures Commission (SFC)
pursuant to the Securities and Futures Ordinance (Chapter 571 of the Laws of Hong Kong) “SFO”. As per SEBI (Research Analyst Regulations) 2014 Motilal Oswal Securities (SEBI Reg No. INH000000412) has an agreement with
Motilal Oswal capital Markets (Hong Kong) Private Limited for distribution of research report in Kong Kong. This report is intended for distribution only to “Professional Investors” as defined in Part I of Schedule 1 to SFO. Any
investment or investment activity to which this document relates is only available to professional investor and will be engaged only with professional investors.”
Nothing here is an offer or solicitation of these securities, products and services in any jurisdiction where their offer or sale is not qualified or exempt from registration. The Indian Analyst(s) who compile this report is/are not located in
Hong Kong & are not conducting Research Analysis in Hong Kong.
Motilal Oswal Capital Markets Singapore Pte Limited is acting as an exempt financial advisor under section 23(1)(f) of the Financial Advisers Act(FAA) read with regulation 17(1)(d) of the Financial Advisors Regulations and is a
subsidiary of Motilal Oswal Securities Limited in India. This research is distributed in Singapore by Motilal Oswal Capital Markets Singapore Pte Limited and it is only directed in Singapore to accredited investors, as defined in the
Financial Advisers Regulations and the Securities and Futures Act (Chapter 289), as amended from time to time.
In respect of any matter arising from or in connection with the research you could contact the following representatives of Motilal Oswal Capital Markets Singapore Pte Limited:
Kadambari Balachandran
Email : kadambari.balachandran@motilaloswal.com
Contact : (+65) 68189233 / 65249115
Office Address : 21 (Suite 31),16 Collyer Quay,Singapore 04931
For Hong Kong:
For Singapore
18 January 2016
Motilal Oswal Tower, Level 9, Sayani Road, Prabhadevi, Mumbai 400 025
Phone: +91 22 3982 5500 E-mail: reports@motilaloswal.com
Motilal Oswal Securities Ltd
11